Rise to New Heights

Premium Plots and Homes for Inspired Living

Sri Bhramara Apex Heights, in partnership with Amaravati investors, offers 259 DTCP-approved plots and duplex homes with modern amenities like a clubhouse, pool, and parks. Located near key hubs in Vijayawada, it combines luxury living with great investment potential.


Contact Us

Our Services

LP No. 55/2022/1168/APCRDA/DPMS
Apex Heights is the new mega project by Sri Bhramara Townships Private Limited that promises a great life at a strategic location on the National Highway 16. This 19 acre project is located close to Jakkula Nekkalam Village, Vijayawada International Airport at Gannavaram and the educational & IT hub.
You get to choose from 259 open plots and duplex houses at Apex Heights. This venture also has a well-equipped clubhouse, swimming pool and play zone to keep your spirits elevated through the weekend. You get to experience a majestic life here with a properly planning community with best of road connectivity.

Project Highlights

Amenities

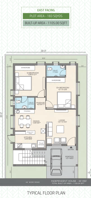
Typical Floor Plans - Independent Houses

EAST FACING - 183 SQYD

WEST FACING - 183 SQYD

Ready to Get Started?

Start Smart – Here’s What We Offer

1. Get expert advice from certified real estate professionals

2. Explore verified listings tailored to your needs

3. Schedule property visits at your convenience

4. Receive transparent pricing and legal guidance

5. Enjoy end-to-end support—from search to settlement

6. Secure the best deals in top locations

7. Buy, sell, or rent with confidence

Site Layout

Location Map

Looking to know more about the property?

Get expert help and the best market value today!

+91 950 226 7654

Facebook
Instagram
Twitter
Youtube